Cultura

Musei.ConsultazioneBeni2023


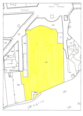
STADIO FERRUCCIO SQUARCIA

Autore
Pilotti Vincenzo costruzione

Tipo
stadio

Descrizione

intero bene, Lo stadio, con muro perimetrale ad esedra scandito da paraste e nicchioni di forma classica, ma caratterizzati da una asciuttezza formale tipica dei primi decenni del Novecento, viene costruito nel 1926 su disegno di Vincenzo Pilotti.

Datazione
XX - XX

Localizzazione
(AP) Ascoli Piceno

Identificatore
11 - 00221734

Proprietà
CDGG=proprietà Ente locale; CDGS=Comune di Ascoli Piceno;